- Woonoppervlakte
- Circa 89 m²
- Perceeloppervlakte
- Circa 144 m²
- Bouwjaar
- Gebouwd in 1938
- Aantal kamers
- 3 kamers (2 slaapkamers)
CHARMANTE JAREN '30 WONING IN DE POPULAIRE INDISCHE BUURT
Welkom thuis op een adres waar sfeer, karakter én ligging perfect samenkomen. Deze goed onderhouden halfvrijstaande woning is gelegen aan de rustige en karakteristieke Soembastraat in het centrum van Meppel.
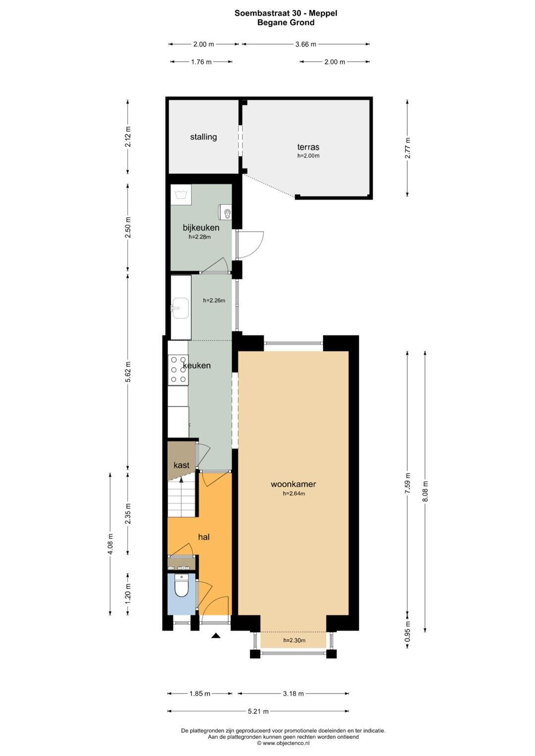
De woning beschikt over een knusse woonkamer met parketvloer en aan de voorzijde een karakteristieke erker die zorgt voor extra lichtinval en sfeer. Aan de achterzijde bevindt zich een tuingerichte eetkamer, met directe toegang tot de open keuken, voorzien van inbouwapparatuur en een granieten werkblad. De achtergelegen bijkeuken is praktisch ingericht met CV-ketel (2023) en witgoedaansluitingen.
Op de eerste verdieping bevinden zich twee praktisch ingerichte slaapkamers met handige inbouwkasten. De recent verbouwde badkamer is dankzij de dakkapel opvallend ruim en luxe uitgevoerd met een wandcloset, inloopdouche, dubbel wastafelmeubel en handdoekradiator – een heerlijke plek om de dag te beginnen of juist ontspannen af te sluiten.
De vliering biedt extra opbergruimte en is bereikbaar via een vlizotrap.
De voortuin vormt een prettige buffer tussen woning en straat en zorgt voor extra privacy. Naast de woning loopt een steeg naar de verzorgde en onderhoudsvriendelijke achtertuin op het zuidoosten, die ook via de bijkeuken bereikbaar is. Achterin bevindt zich een gezellige veranda met stalling – ideaal voor fietsen of tuingereedschap.
Kortom; een karaktervolle woning waar het jaren ’30 gevoel hand in hand gaat met modern comfort. Perfect voor wie op zoek is naar een sfeervolle plek met praktische indeling, eigentijdse afwerking en een tuin waar je direct van kunt genieten.
***HIGHLIGHTS***
- Rustige centrumligging in de gewilde Indische Buurt
- Jaren '30 charme gecombineerd met modern wooncomfort
- Knusse woonkamer met karakteristieke erker en tuingerichte eetkamer
- Open keuken met inbouwapparatuur en granieten blad
- Praktische bijkeuken met CV-ketel (2023) en witgoedaansluitingen
- Twee goed ingedeelde slaapkamers met ruime inbouwkasten
- Riante, luxe badkamer met onderhoudsvriendelijke dakkapel (2020)
- Nagenoeg geheel voorzien van HR++/HR/dubbelglas
- Gevels en plafonds van de begane grond geïsoleerd (2015)
- Dak bijkeuken recent geïsoleerd (2022)
- Zonnige, onderhoudsvriendelijke achtertuin met veranda
- Rolluiken aan de achterzijde en bij de badkamer voor zonwering en comfort Lees de volledige omschrijving
CHARMANTE JAREN '30 WONING IN DE POPULAIRE INDISCHE BUURT
Overdracht
- Vraagprijs
- € 345.000 k.k.
- Status
- Verkocht
Bouw
- Object type
- Eengezinswoning, halfvrijstaande woning
- Soort bouw
- Bestaande bouw
- Bouwjaar
- 1938
- Soort dak
- Mansarde dak bedekt met pannen
Oppervlakte en inhoud
- Woonoppervlakte
- 89 m²
- Perceeloppervlakte
- 144 m²
- Inhoud
- 353 m³
Indeling
- Aantal kamers
- 3 kamers (2 slaapkamers)
- Aantal badkamers
- 1 badkamer en 1 apart toilet
- Badkamervoorzieningen
- Dubbele wastafel, inloopdouche, toilet, en wastafelmeubel
- Aantal woonlagen
- 2 woonlagen en een vliering
- Voorzieningen
- Buitenzonwering, glasvezelkabel, natuurlijke ventilatie, rolluiken, en TV kabel
Energie
- Energielabel
- E
- Energielabel registratie
- 23-10-2025
- Isolatie
- Grotendeels dubbelglas, hr-glas en muurisolatie
- Verwarming
- Cv-ketel
- Warm water
- Cv-ketel
- Cv ketel
- Atag ty361 20h (gas gestookt combiketel uit 2023, eigendom)
Buitenruimte
- Ligging
- Aan rustige weg en in centrum
- Tuin
- Achtertuin en voortuin
- Afmetingen achtertuin
- 38 m² (9,60 meter diep en 4,00 meter breed)
- ligging tuin
- Gelegen op het zuidoosten
Bergruimte
- Schuur / berging
- Aangebouwde stenen berging
- Voorzieningen
- Elektra
Parkeergelegenheid
- Soort parkeergelegenheid
- Betaald parkeren, openbaar parkeren en parkeervergunningen
Energieverbruik in Meppel
Energielabel deze woning
Energielabel E
Publicatie energielabel: 23-10-2025
Stroomverbruik per jaar
(Gemiddelde vrijstaande woning in Meppel)
Gasverbruik per jaar
(Gemiddelde vrijstaande woning in Meppel)
* Cijfers zijn afkomstig van het CBS en bedoeld als indicatie en kunnen verschillen voor deze woning
Indicatie hypotheeklasten
Eigen inleg:
Spaargeld / overwaarde
Rente:
Laagste 10-jaars rente
Laagste 10-jaars rente
2,98% - Centraal Beheer Groen... - NHG
3,2% - Argenta Groen Hypotheek... - 80%
Laagste 20-jaars rente
3,19% - Centraal Beheer Groen... - NHG
3,57% - Argenta Groen Hypothee... - 80%
Laagste 30-jaars rente
3,34% - Centraal Beheer Groen... - NHG
3,74% - Argenta Groen Hypothee... - 80%
Hypotheek:
Bruto maandlasten: € 0 p/m
Netto maandlasten: € 0 p/m
Hoe berekenen we dit?
Het rentepercentage is gebaseerd op de laagste 10 jaars vaste rente voor één hypotheekdeel. De vermelde rente (2.98% met NHG) is gecontroleerd op 18-12-2025. Deze berekening is gebaseerd op een annuïteitenhypotheek die volledig wordt afgelost, waarbij de maandlasten gedurende de gehele looptijd gelijk blijven. De werkelijke rente en netto maandlasten kunnen variëren, afhankelijk van uw persoonlijke situatie en de hypotheekverstrekker. Raadpleeg een financieel adviseur voor een nauwkeurige berekening en advies. Aan deze berekening kunnen geen rechten worden ontleend; het dient enkel als indicatie.
Documentatie
Kadastrale kaart
Leefomgeving
Kadaster-eigendomsinformatie-ano
Kadaster-kadastrale-kaart
BAG uittreksel
Akte-van-levering-ano
Vragenlijst-deel-b-woning
Lijst-van-zaken
Energielabel
Meetrapport
Plattegronden PDF
WOZ waarderapport
Brochure
Bezichtiging
Bod uitbrengen
Waardebepaling
Zoekopdracht
Alles downloaden
Zonnegrenzen bekijken
Op de kaart
Inwoners in Meppel
Cijfers voor postcodegebied 7941
- Totaal aantal inwoners
- 6145 inwoners
- Mannen
- 48%
- Vrouwen
- 52%
Inwoners in Meppel
Cijfers voor postcodegebied 7941
- tot 15 jaar
- 10%
- 15 tot 25 jaar
- 12%
- 25 tot 35 jaar
- 22%
- 45 tot 65 jaar
- 28%
- 65 en ouder
- 28%
Huishoudens in Meppel
Cijfers voor postcodegebied 7941
- Eenpersoons zonder kinderen
- 51%
- Meerpersoons zonder kinderen
- 29%
- Huishoudens zonder kinderen
- 80%
Huishoudens in Meppel
Cijfers voor postcodegebied 7941
- Huishoudens met één kind
- 6%
- Huishoudens met meerdere kinderen
- 14%
- Huishoudens met kinderen
- 20%
Woningen in Meppel
Cijfers voor postcodegebied 7941
- Woningen voor 1945
- 45%
- Woningen tussen 1945 en 1965
- 8%
- Woningen tussen 1965 en 1975
- 1%
- Woningen tussen 1975 en 1985
- 7%
- Woningen tussen 1985 en 1995
- 12%
Woningen in Meppel
Cijfers voor postcodegebied 7941
- Woningen tussen 1995 en 2005
- 19%
- Woningen tussen 2005 en 2015
- 6%
- Woningen na 2015
- 2%
- Huurwoningen
- 50%
- Koopwoningen
- 50%
Overige in Meppel
Cijfers voor postcodegebied 7941
- Gemiddelde WOZ waarde
- € 201.000,-
- Personen onder de 65 met uitkering
- 8%
Overige in Meppel
Cijfers voor postcodegebied 7941
- Adressen per km²
- 2008
- Stedelijkheid (schaal 1 op 5)
- 80%
Korte feiten over Meppel
Meppel (Drents: Möppelt) is een gemeente en stad in het uiterste zuidwesten van de Nederlandse provincie Drenthe. Op 31 januari 2023 telde de gemeente 35.454 inwoners (bron: CBS), waarvan ruim 31.000 in de stad Meppel zelf wonen. De gemeente kende in de eerste decennia van de eenentwintigste eeuw een bevolkingsgroei met enkele duizenden inwoners. De oppervlakte bedraagt 58 km². Meppel is hiermee qua oppervlak de kleinste gemeente van Drenthe.
Hemme Van Tilburg Makelaars & Taxateurs
Indien u vragen heeft of u wilt een bezichtiging inplannen, dan kunt u gebruik maken van het formulier hiernaast. Er zal daarna op korte termijn contact met u worden opgenomen.
Contact opnemen
Hemme Van Tilburg Makelaars & Taxateurs
Op zoek naar een nieuwe woning of overweegt u uw huis te verkopen? Bij Hemme Van Tilburg Makelaars & Taxateurs begeleiden we u op een persoonlijke en ontspannen manier bij zowel de aan- als verkoop van uw woning. Ook voor huur en verhuur kunt u bij ons terecht. Daarnaast bieden we diverse diensten aan die bijdragen aan zorgeloos en comfortabel wonen.
Met een praktische en betrokken aanpak zetten we ons in voor het beste resultaat, waarbij uw wensen centraal staan. Of u nu een woning zoekt of wilt verkopen – wij staan voor u klaar!
✔ Persoonlijke begeleiding
✔ Jarenlange ervaring
✔ Flexibel en doeltreffend
✔ Snel en accuraat
Landelijke dienstverlening vanuit onze kantoren in Meppel en Amstelveen.
Heeft u een vraag, wilt u een gratis waardebepaling van uw woning of een vrijblijvende afspraak? Neem gerust contact met ons op!
Nieuwste reviews
-
Schutkenstraat 40
Fijne makelaar met veel kennis en ervaring. Neemt echt de tijd voor zowel verkoper als potentiële kopers.
-
Marloes Wind
Zowel voor ons aankoop- als verkooptraject hebben wij hulp gehad van Hemme van Tilburg Makelaar. Sterker nog: zonder deze fijne, ontzettend...
-
Rik
Zeer fijne en meedenkende makelaar. We kregen via WhatsApp snel antwoord op al onze vragen, ook in het weekend! Ook het meegaan naar de bezi...